Eladásra kínáljuk Halásztelek közkedvelt részén, új építésű családi házas környezetben ezt a világos, szépen karbantartott, modern 96 m2-es ikerházfelet. Az ingatlanhoz 473 m2 összközműves saját telek tartozik, valamint kialakítása miatt önálló családi ház érzetet nyújt, mivel ikerházfeléhez csak előtetővel kapcsolódik.
Az ingatlan 2017-ben beton alapra, 30-as nútféderes Leier tégla falazattal, cseréppel fedett tetőszerkezettel épült.
Az ingatlan teljes homlokzati felülete 10 cm-es szigetelést, a fa födém 20 cm kőzetgyapot szigetelést kapott.
Mindenhol kiváló műanyag tokos, thermo üvegezésű, 2 cellás nyílászárók kerültek elhelyezésre, alumínium redőnyökkel és szúnyoghálóval szerelve.
A fűtésről és meleg vízellátásról Ariston kondenzációsi gázcirkó gondoskodik radiátoros hőleadással. A nappaliban hűtő-fűtő klíma került beszerelésre.
A beépített konyhabútor az ár részét képezik.
A házhoz tartozó 473 m2-es telek teljes egészében tujákkal és igényes kerítéssel körülölelt, így egy igazán intim, nyugodt életteret biztosít a család számára. A nyeles telek kialakításának köszönhetően az egyébként is csendes utcáról érkező minimális zaj sem hallatszik be.
A kertben egy fedett terasz, valamint több kerti tároló is helyet kapott.
A locsolást fúrt kút segíti.
Az udvarban – a kert zavartalan használata mellett – 3 autó parkolása megoldott, a ház előtt pedig további 1 gépjármű számára van hely.
Az ingatlan elektromos kapuval felszerelt, amely kényelmes bejutást biztosít.
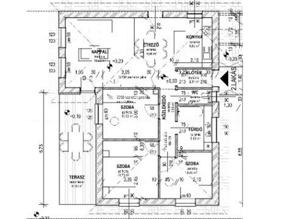
A földszintes ingatlanban található egy külső tároló, majd a házba belépve előtér, terasz kapcsolatos amerikai konyhás nappali, 3 hálószoba, külön WC és kádas fürdőszoba.
A ház új építésű környezetben, új építésű ingatlanok szomszédságában található.
Ajánlom az ingatlant fészekrakó fiatal pároknak, kisgyermekes családoknak, de földszintes elrendezése miatt az idősebb korosztály számára is ideális otthon.
Az ingatlan csendes, átmenő forgalomtól mentes utcában található, mégis minden megtalálható a közelben.
Halásztelken nagyszerű bölcsőde, óvoda iskola és gimnázium várja a gyermekeket.
Orvos, boltok, pékség, hentes, éttermek, zöldséges, gyógyszertár és minden ami a mindennapok könnyed menetéhez szükséges a közelben megtalálható.
Budapest közelsége, jó közlekedés, csendes utca, saját kert, minőségi anyagokból készült modern otthon, jó infrastruktúra, mind, mind amellett szól, hogy itt találja meg jövendő otthonát.
Keressen bennünket bizalommal, amennyiben ingatlan értékesítéséhez keres segítséget. Irodánk nem alkalmaz kizárólagos szerződést. Tiszteletdíjunk kizárólag sikeres értékesítés esetén kerül felszámításra.Várjuk hívását akár hétvégén is.
A Classingatlan teljes körű szolgáltatást nyújt:
– ingatlan értékesítés
– energiatanúsítvány készítése
– hivatalos értékbecslés
– bankfüggetlen hitelügyintézés (díjmentesen)
– ügyvédi háttér biztosítása
Hétvégén is várjuk hívását.
06709053525
Mobil: 0670 905 35 25
E-mail: dorina.classingatlan@gmail.com
81.600.000Ft
Hozzáadva: 2026-04-16
14.000.000Ft
Hozzáadva: 2026-04-15